Проекты домов из бруса 6 х 6 с мансардой: чертежи и внутренняя планировка
Когда встает вопрос о планировке дома с площадью 6 на 6, следует учитывать, для каких целей он строится. Если это домик для летнего загородного отдыха, то основную часть дома отводят для комнат жилого назначения, а для отдыха оставляют минимальное количество места. Как правило, зону отдыха в дачных домах обустраивают на террасе или рядом с домом на специальной площадке.

Правильное расположение комнат с террасой для отдыхаИсточник Skpomestie.ru
А вот если дом предназначен для проживания в нем круглый год, то площадь для жилых комнат остается небольшая. Ведь нужно место для общих помещений, таких как кладовая или гардеробная, которые помогут содержать дом в чистоте и порядке.

Рациональное расположение комнат с площадью для технического помещения или гардеробнойИсточник Domostroev.com
При планировании двухэтажного дома с такой площадью есть один существенный недостаток. Места для лестницы на второй этаж или мансарду остается очень мало. Как итог – она будет очень крутой, что значительно затруднит по ней подъем пожилых людей и детей.
Для одноэтажного дома
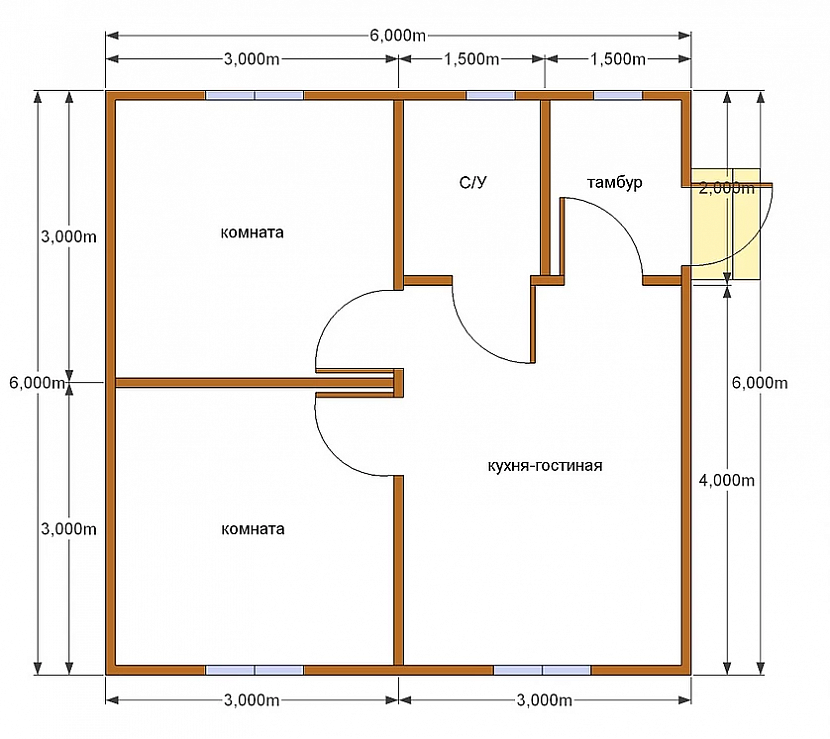
Одноэтажный дом площадью 6х6 имеет не так много вариантов планировки, как двухэтажные дома. Ведь на одной площади необходимо расположить все необходимые помещения и разделить их тонкими перегородками.
Если в доме будет проживать семья из двух человек, то можно сделать просторную кухню, спальню и санузел. Тогда каждое из помещений будет иметь достаточную площадь для комфортного проживания.

Планировка дома для семьи из двух человекИсточник Ooo-skp.ru
Когда строительство планирует семья с ребенком, то необходимо будет оборудовать детскую комнату. Для нее следует отнимать площадь от кухни и родительской спальни.

Планировка дома площадью 6х6 с двумя изолированными комнатами для родителей и ребенкаИсточник Dobrodom75.ru
Не стоит забывать и об обогреве дома. При планировании одноэтажного проекта предусматривается установка печи посередине дома. Такое расположение позволит одинаково обогревать все помещения, а так же разделит кухню и помещения для отдыха.
Для двухэтажного дома
Если предусматривается планировка дома 6х6 с мансардой, то жилая площадь будет уже не 36 кв.м, а 40-44 кв.м. При выборе крыши стоит заранее определиться с количеством спален на чердаке. Если будет одна большая спальня, то крышу можно сделать двухскатную.

Правильное расположение комнат в доме с мансардой и одной комнатойИсточник Daromdoma.ru
А когда в плане указывается две или три небольших комнаты, то стоит остановить выбор на вальмовой крыше. Под такой крышей можно сделать дополнительные помещения, например, гардеробную.

Расположение комнат на первом и втором этаже с отведением места для гардеробнойИсточник Domikbani.ru
На первом этаже здания располагаются кухня, гостиная, санузел и прихожая. А так же уделяется место и для лестницы. А в мансарде уже обустраиваются спальные комнаты.
Планировка такого дома имеет значительные преимущества. Спальные комнаты закрыты от посторонних людей, так как располагаются этажом выше. К тому же расширение жилой площади за счет строительства мансарды позволяет поставить дом для небольшой семьи в ограниченном пространстве.
Чтобы получить дополнительное пространство для отдыха, то следует на втором этаже сделать небольшой балкон или лоджию. Там можно поставить пару кресел и стол, и таким образом получить дополнительное помещение.

Рациональное расположение комнат дома с мансардой и отведением места для оборудования балконаИсточник Banivsem.ru
Специалисты рекомендуют проводить строительство домов такой площади именно с мансардой. Тогда само строение будет выглядеть пропорциональным, а на несущую конструкцию не будет создаваться большая нагрузка, а это защитит от сильной усадки.
При планировании места установки лестницы стоит помнить, что ее минимальная ширина составляет 1 метр. Тогда по ней можно будет безопасно передвигаться и избежать травм.
Для санузла отводится небольшое помещение, в нем лучше располагать не ванную, а душевую кабину: тогда места понадобится меньше.

Рациональная планировка санузла на первом этаже дома с мансардойИсточник Autogear.ru
Если один из членов семьи имеет надомную работу, то на первом этаже можно расположить изолированный кабинет в дальнем углу дома.
Примеры наружного оформления домов 6 на 6
Современные коттеджи с мансардой очень разнообразны и эстетичны. Мансардный этаж придает зданию более завершенный и элегантный вид. Это касается как больших загородных особняков, так и маленьких частных домов.
Видео описание
Варианты наружного оформления домов 6*8 из пенобетона с мансардой смотрите в этом видео:
Дом 6 на 6 с мансардой может иметь очень простую форму, и при этом выглядеть достаточно стильно и привлекательно. Так, на фото ниже можно рассмотреть пример оформления фасадов под деревянный сруб. Именно материал наружной отделки и обеспечивает данной постройке презентабельность. Такого рода жилище отлично впишется в любой ландшафт и будет гармонично смотреться в любом окружении.
Коттедж с облицовкой под брусИсточник lesville.ru
Следующий пример – это дом в деревенском стиле с высокой мансардной кровлей и деревянным крыльцом. Здесь использована отделка сайдингом, который может иметь практически любой оттенок. Цвет отделки дома на фото подобран с учетом гармоничного сочетания с природными оттенками. Черепичная крыша и отделка цокольной части камнем придают дому облик надежного, добротного и очень уютного жилья.
Дом в деревенском стилеИсточник moydom.net.ua
Небольшие коттеджи хорошо смотрятся и с оштукатуренными фасадами, как на следующем фото. Обычно выбирают неяркие варианты штукатурки. Эффектность фасадов достигается путем контрастного сочетания цвета стен и кровли.
Дом из пеноблоков с оштукатуренными фасадамиИсточник budrezerv.com
При оформлении коттеджей в современном стиле дизайнеры часто прибегают к сочетанию разных по качеству, фактуре и цвету отделочных материалов. Все это вместе с широким остекление, которое очень популярно сейчас в малоэтажном строительстве, составляет достаточно эффектную фасадную композицию. Когда рассматривается внутренняя планировка, то наверху не всегда располагают именно спальню – есть и другие, не менее интересные идеи использования мансарды.
Пример оформления современного коттеджаИсточник stroyinnov.com
Заключение
Компактный загородный коттедж, размером 6 на 6 метров может стать достойным и удобным жильем. Но строить такие дома следует по грамотно составленным проектам. Кроме того, их необходимо обустраивать с учетом определенных правил, позволяющих создавать комфорт на минимальной жилой площади.
Как построить?
Прежде чем возводить дом, следует тщательно обдумать его конструкцию. Начертите подробную схему, где будет отображен план расположения всех комнат, межкомнатных перегородок, оконных и дверных проемов. Но также не забудьте учесть расположение коммуникаций. Затем приступите к зарисовке оформления фасада и внутренней отделки
Важно сразу подготовить целостный проект, чтобы потом ничего не нужно было переделывать. Но также важно написать смету, чтобы быть уверенным, что вам хватит средств на осуществление задуманного
После того как вы определились с видом планировки одного- или двухэтажного брусового дома 6х8 метров, пора приступать к строительству. Весь процесс возведения здания делится на несколько этапов.
Закладка фундамента
Тип конструкции зависит от нескольких факторов: особенностей почвы и самого проекта. Поскольку некоторые предпочитают добавлять к дому подвальное помещение.
Возведение стен
Первым делом надо провести гидроизоляцию основания. Это можно сделать при помощи рубероида или же любого другого подходящего материала. Затем нужно приступить к укладке первого венца бруса. Предварительно в каждом брусе надо сделать специальные пазы, за счет которых будут связываться узлы конструкции.
Состыковка бруса
Для выполнения этого этапа понадобится:
- обеспечить строго горизонтальное положение венца;
- проверить углы – они должны быть четко 90 градусов;
- положить джутовый (или другой) утеплитель поверх первого венца;
- установить второй венец;
- просверлить отверстия вдоль оси бруса с максимальным шагом в 2 метра;
- скрепить первый и второй ряды при помощи специальных штырей – нагелей;
- уложить третий ряд бруса.
Разметка положения проемов
После того как все венцы возведены, и каркас дома готов, следует приступить к разметке положения дверных и оконных проемов. После этого надо вырезать их при помощи обычной пилы. Помните, что окна и двери в деревянном доме нельзя устанавливать сразу после строительства, нужно обязательно дождаться усадки дома.
Сборка крыши
Теперь можно перейти к монтажу кровли. Покрытие выбирайте любое: черепица, профилированный лист и так далее. Сделайте обрешетку поверх каркаса и обязательно постелите гидроизоляционный материал. Не пренебрегайте этим, поскольку так вы существенно улучшите эксплуатационные характеристики и срок службы строения. Далее установите кровельное покрытие.
Установка дверей и окон
Монтируйте рамы в подготовленные отверстия, когда дом будет готов к этому. Если вы не хотите ждать, пока дом даст усадку, лучше использовать для строительства не бревно, а клееный брус. Однако данный материал также может усаживаться примерно на 2 миллиметра в год. И при неправильном или поспешном монтаже окон и дверей даже такое минимальное расстояние может сказаться на целостности конструкций. Будьте внимательны с этим.
На этом основные строительные работы завершаются. Далее останется только приступить к внутренней отделке помещения. Сооружение дома 6х8 метров не отнимет много времени и денег. Однако такое жилище отлично подойдет как для постоянного, так и для сезонного проживания.
Двухэтажный дом
В двухэтажном доме, который занимает площадку размером 6 на 9, может с комфортом расположиться большая семья. Второй уровень дома обычно отводят под спальную зону. Особенности планировки зависят от количества членов семьи и их образа жизни. Так, например, если в семье есть взрослые дети, то можно предусмотреть две гостиные, чтобы представитель разных поколений могли отдыхать и принимать гостей, не мешая друг другу. А для семей, в которых есть пожилые люди, рекомендуется одну из спален размещать на первом этаже.
Важный элемент двухэтажного строения – это межэтажная лестница. Она занимает пространство на первом и на втором этаже. Часто при планировке небольших коттеджей, с целью сэкономить место, проектируют узкие неудобные лестницы, иногда даже винтовые. Однако нужно помнить о том, что все конструкционные элементы жилища должны быть в первую очередь надежными и безопасными. Поэтому лучше устанавливать удобную маршевую лестницу с широкими ступенями. А для экономии пространства можно обустроить в нише под ступенями шкаф или хранилище для бытовых принадлежностей.

Планировка двухэтажного дома 6 на 9Источник drevolog.ru
Мансарда
Для того чтобы сделать из мансарды не просто склад вещей, а уютное место для проживания обязательно стоит учесть такие нюансы как:
- Обеспечение стабильной и высокой температуры за счёт использования качественных теплоизоляционных материалов;
- Проводка эффективной гидроизоляционной системы (чтобы наружные осадки не проникали внутрь мансарды);
- Использование лёгких строительных компонентов, чтобы предотвратить появление трещин на стенах.









Плюсы жилой мансарды:
- Увеличение площади;
- Лёгкая подводка коммуникаций;
- Воплощение всех оригинальных дизайнерских задумок;
- Чердачный уголок можно использовать в качестве спортивного зала, гардеробной и.т.д.

Превращение чердака в жилой уголок – это выгодное вложение финансовых средств, которые окупятся во много раз.

Полноценное деревянное жилище
Но готовые блоки для многих людей скучны и слишком однообразны. Куда приятнее и интереснее бывает использовать традиционные постройки из древесины. В этом случае логично строить садовый 2-этажный домик. Или 1-этажный, но с жилой мансардой.
Рекомендуется оборудовать жилье большими окнами, если можно обнаружить хорошие виды. В большинстве проектов предусматривается двускатная кровля, перекрытая металлочерепицей.
Обычным вариантом является использование окон ПВХ. Учитывая повышенный криминальный риск, характерный для дачных поселков и загородных домов в целом, желательно выбирать окна с противовзломной фурнитурой и антивандальными свойствами.
Дверь непременно ставят стальную — только она достаточно надежна. Типовая планировка подразумевает выделение на первом ярусе гостевой и кухонной зон. Мансарды используют в качестве спален.
Варианты дизайна
Современный стиль фахверк пришел из Германии и является универсальным для скромных домов экономкласса. Особенно он нравится заказчикам тем, что строение можно возвести быстро на основе деревянного каркаса и сэндвич-панелей. В качестве перегородок между комнатами можно воспользоваться металлическим профилем вместе с гипсокартоном. Лучшим утеплителем в этом случае станет минвата.
Фасад следует оштукатурить и обшить планками из дерева, желательно используя темные оттенки. Стоит отметить, что такие перекладины очень эффектно смотрятся на фоне светлых цветов. Особенностью стиля являются этажные выступы. Они не только защищают вход в дом от осадков, но еще и расширяют площадь на втором этаже.
В настоящее время можно также встретить строения в стиле фахверк с массивным фундаментом из камня, кирпичными стенами и крышей из керамической черепицы. Это делает здания визуально внушительными и величественными, а еще устойчивыми к условиям даже очень сурового климата.
Дома в стиле шале родом из швейцарских Альп приятно поражают своей массивностью и надежно защищают от ветров и осадков. Для данных строений характерна двускатная большая крыша, которая довольно заметно выступает за пределы стен с защитной целью. Также стиль узнаваем по внушительным продольным и поперечным балкам, которые можно увидеть как снаружи здания, так и в интерьере.
Если строение имеет мансардный этаж под крышей, то к нему обязательно примыкает просторный балкон. Низ дома, как правило, отделан с использованием камня, а верх – дерева. Это делает строение еще более теплым. Для хорошего обзора оконные проемы делаются довольно большими.
В некоторых современных вариантах шале можно увидеть нижнюю отделку из кирпича и бетона, а верхнюю – из профилированного бруса. При этом крыша не всегда бывает двускатной – встречаются и плоские варианты. Однако даже при использовании самых новейших материалов и оригинальных дизайнерских решений швейцарские дома продолжают быть легко узнаваемыми и привлекательными. В этом помогают простота стиля с очень маленьким числом декоративных элементов, использование в том или ином количестве натуральных материалов, надежность, долговечность и экологичность. Стоит отметить, что у стиля шале есть немало общего со стилем кантри, а также с домами в экостиле.
Финские дома отлично вписываются в природные ландшафты и по-особенному смотрятся на фоне нетронутых пейзажей. Многие узнают этот стиль по объемным каркасным строениям и крышам с острым верхом. Коттеджи в финском стиле также выдает простая форма, имеющая безупречный вид. Современное строительство таких домов предполагает использование не только древесины, но и кирпича, и газобетона. Особый колорит создается за счет обшивки досками, чтобы имитировать массивный брус.
Для финской архитектуры свойственен столбчатый фундамент. Столбы или сваи объединяются в конструкцию, которая позволяет легко справиться, если рельеф участка имеет неровности. Так, если есть высокий перепад высот, то не придется тратиться на выравнивание грунтового основания, прежде чем заложить фундамент.
В финских домах всегда можно увидеть гармоничное сочетание камня с деревом. Причем с его помощью можно украсить фасад или использовать в интерьере. Очень эффектно смотрятся маленькие дома, если рядом с ними располагаются огромные валуны или каменные глыбы, уложенные в хаотичном порядке. Довольно часто дома дополняют уличным камином, который является особенностью финского стиля. Его пристраивают недалеко от парадного входа, при этом труба делается очень высокой, как будто уходит в небо, а топка ориентирована на улицу.
Уличный камин – еще одна характерная черта финского стиля. Он полностью располагается вне дома и очень часто пристраивается сбоку от парадного входа. Собирается обычно из природных камней. Труба камина тянется вверх, уходя в небо, а топка ориентирована на улицу.
Обзор проектов
Существует два наиболее популярных проекта, дополняемые при необходимости цокольным помещением.
Внутренняя душевая – 1,1 м2, тамбур – 2,5 м2, гостиная – 11,2 м2. Второй этаж – спальня на 13,7 м2. На участке проект занимает свои 18 м2 – вместе со стенами.
Обустроить чердак в виде антресоли возможно, лишь когда крыша двускатная. На практике при проживании вдвоём от этого варианта чаще отказываются, заменяя чердак на полноценный второй этаж. Мансарда для таких миниатюрных домов – неразумное расточительство, поэтому рекомендуется сразу возводить второй этаж. Толщина стен при этом должна быть не менее, чем полтора-два кирпича- «стопятидесятки». В качестве материалов для садовых деревянных домов – брус, бревно и доска. Дача, на участке которой стоит дом из дерева или кирпича, смотрится по-современному даже в наши дни.
Какие материалы чаще используют для строительства дачного дома
Традиционные проекты дачных домиков для 6 соток, фото которых делали 15 — 20 лет назад, предполагали использование в основном древесины. Этот материал тогда не был таким дорогим, как сегодня. Несмотря на значительную стоимость, древесина сегодня остается достаточно популярным материалом в дачном строительстве. Ведь она обладает экологичностью и гармонией с природой.
В регионах с развитой деревообрабатывающей промышленностью постройка сооружения из бруса или бревна не очень затратная. Фото садовых домиков, порой с замысловатыми формами, вдохновит на создание своей неповторимой конструкции.
Примеры проектов дачных домиков.
Различные легкобетонные блоки сегодня поголовно используют во всех видах строительства. Не исключение и дачное. Они обладают небольшой стоимостью. Фото дачных домиков из пеноблоков демонстрирует аккуратную геометрическую форму таких сооружений. Возводить из них стены достаточно удобно и это не требует больших временных затрат. При надлежащем утеплении, домики из легкобетонных блоков будут очень теплыми зимой. Неплохой популярностью пользуются и сэндвич-панели при строительстве домиков на дачном участке.
Дачный дом на высоком фундаменте.
Выбор строительного материала зависит от его стоимости в регионе, личных предпочтений, условий доставки до участка и требований проекта
Немаловажное значение играет и тип фундамента. Он тоже зависит от материала стен, а также от свойств грунта
Брусовые и каркасные домики ставят на столбчатые или винтовые фундаменты.
Дачный домик обшит сайдингом.
На заметку! Нельзя делать столбчатый фундамент при слишком высоком нахождении грунтовых вод или повышенной сыпучести грунта. Для таких случаев оптимален ленточный фундамент. Стены из легкобетонных блоков удобнее всего сооружать тоже на ленточном фундаменте.
Кровельный материал на дачный домик делают любой. Оптимально использовать металлочерепицу. При своей приемлемой стоимости этот материал дает шанс создать прочное и надежное покрытие, которому нестрашны любые перипетии погоды.
Количество этажей
Для определения этажности будущего дома нужно предварительно взвесить все за и против той или иной планировки.
Выбор одноэтажного коттеджа 8 на 12 обойдется значительно дороже, чем дом с мансардой. Чтобы получить здание такой же площади нужно увеличить площадь фундамента и кровли, а это существенные затраты. Но если в семье есть пожилые люди одноэтажное здание то, что нужно.
Мансарда позволит разделить планировку коттеджа на общую зону и личные апартаменты членов семьи. Такой план дома 8 на 12 станет логичным решением для небольшого участка. Недостатком проекта здания с мансардой являются небольшая высота аттиковой стены и скаты кровли, уменьшающие полезное пространство.
Двухэтажный дом хоть и дороже, но в таком здании есть два полноценных и пригодных для проживания уровня.
Одноэтажный
При планировке коттеджа 8×12 нужно учесть минимальный перечень необходимых помещений:
- Гостиная.
- Спальня для каждого члена семьи.
- Кухня.
- Раздельный или совмещенный санузел.
- Входной тамбур или закрытая веранда, для исключения зимой образования конденсата за счет перепада температур.
- Котельная для размещения отопительного оборудования.
В качестве примера может послужить проект одноэтажного дома 8 на 12 для постоянного проживания. Визуально планировку коттеджа можно разделить на две части: зону отдыха и личные апартаменты.
В первой части располагается прихожая со встроенным шкафом-купе, помещение топочной, небольшой холл, плавно переходящий в огромную гостиную с камином, местом отдыха и обеденным столом. Под кухню отделено смежное помещение почти в 8 м2. В другой части располагается три спальни и общий санузел с ванной и душевой кабиной.
Двухэтажный
В сравнении с одноэтажными зданиями 8 на 12, проект двухэтажного дома может похвастаться отличной планировкой. Огромные площади позволяют поместить все необходимые помещения с большим комфортом. Дома с такой планировкой предпочитают большие семьи. Пространство дома включает дневную и ночную зону. На первом уровне по проекту располагаются:
- просторная гостиная, полученная за счет объединения кухни, столовой и зоны отдыха;
- кабинет, который при желании может быть переоборудован в комнату для гостей или членов семьи старшего поколения;
- помещение топочной, которое может использоваться как домашняя мастерская;
- совмещенный санузел;
- прихожая;
- большой холл с лестницей на второй этаж.
Второй этаж с тремя спальнями, просторным холлом, ванной комнатой, туалетом и гардеробной, согласно проекту, отводится под личное пространство обитателей дома.
Проекты
Вот так может выглядеть планировка двухэтажного каркасного дома 4х8 м. Первый уровень отведен главным образом под детскую и гостевую зоны. Есть там и холл. На верхнем ярусе расположена пара спален. Проблемой потенциально может стать отсутствие наверху санузла. Но зато это несколько упрощает планирование и позволяет отказаться от дополнительной разводки труб.
Дачный дом из бруса с гаражом высотой 2 этажа иногда примерно таков. В пользу концепции свидетельствует наличие тамбура. По крайней мере в снежную и слякотную погоду внутри будет чище. Санузел относительно невелик, но со своей задачей справляться должен. На верхнем ярусе находятся спальные комнаты, и их расположение нужно обдумывать дополнительно.
А вот так может выглядеть план жилого дома (точнее, его первого этажа) с баней. Одинаковая площадь парильной и моечной комнат вполне разумна. В помещении для досуга можно расслабиться — пространства там хватает. Крыльцо выполняет одновременно практическую и декоративную роли. Наверху вполне можно расположить гостевые и спальные комнаты.
Особенности
Дом 6 на 8 с мансардным этажом выглядит достаточно компактно. Тем не менее, внутри можно устроить многофункциональные комнаты, в которых удобно разместятся все. Или же пространство можно оставить открытым. Последний вариант подойдет для двоих.
Строительство дома 6х8 существенно сэкономит пространство на небольшом участке. Небольшие дома дешевле построить, особенно, если выбрать каркасный вид строения. При наличии финансов можно выбрать аналогичные строения из кирпича, сибита или древесины.
Особенности дома с мансардой 6х8 позволяют воплотить комфортабельные условия как для временного, так и для постоянного нахождения, при этом не требуя финансовых трат на эксплуатацию. Сооружение позволит расположиться ячейке общества из 3-5 человек. Мансардный этаж успешно компенсирует недостающее пространство.
При этом дом с мансардной настройкой может быть как одноэтажным, так и двухэтажным. Бюджетный вариант конструкции, конечно, – одноэтажный. Одноэтажные строения не только привлекательны на вид, но и обладают рядом положительных качеств, среди которых – возможность обустройства легкого основания.
Дом с мансардной настройкой может быть одноэтажным, ведь мансарда – это дополнительное пространство, которое устраивается на чердаке. Обычно оно находится под крышей, которая бывает скатной или наклоненной.
Мансарду можно оборудовать под дополнительную комнату или для хозяйственных целей. В комнате обустраиваются спальни, детские. Часто устанавливается бильярдный или теннисный стол, а также тренажеры. Если владелец такого домика – творческая личность, то пригодится студия или библиотека. Вариантов множество.
За личный проект стоит браться при наличии хорошего воображения и вкуса. Составление личного проекта с помощью специалистов – достаточно дорогостоящая услуга. Этой работой занимаются специальные организации по жилищному и строительному вопросу. Конечный результат во многом зависит от квалификации сотрудников таких предприятий.
Часто рекомендуемый и качественный метод – приобретение готового типового плана. Преимущества здесь следующие:
Мансарда
Для того чтобы сделать из мансарды не просто склад вещей, а уютное место для проживания обязательно стоит учесть такие нюансы как:
- Обеспечение стабильной и высокой температуры за счёт использования качественных теплоизоляционных материалов;
- Проводка эффективной гидроизоляционной системы (чтобы наружные осадки не проникали внутрь мансарды);
- Использование лёгких строительных компонентов, чтобы предотвратить появление трещин на стенах.









Плюсы жилой мансарды:
- Увеличение площади;
- Лёгкая подводка коммуникаций;
- Воплощение всех оригинальных дизайнерских задумок;
- Чердачный уголок можно использовать в качестве спортивного зала, гардеробной и.т.д.

Превращение чердака в жилой уголок – это выгодное вложение финансовых средств, которые окупятся во много раз.

Пример сооружения дачного домика своими руками
Рассмотрим подробнее строительство из клееного бруса по проекту дачного домика для 6 соток. Фото таких сооружений можно часто встретить на строительных сайтах. Наш домик будет иметь площадь 6х4 м. В доме будет кухня, комната отдыха и маленькая открытая терраса, на которой имеется печь для приготовления барбекю. Ее же используют в качестве источника тепла в доме зимой.
Брус имеет обработку антисептическими составами и морилкой. Фундамент будет ленточный, а под террасой столбчатый. Крышу можно выполнить двускатную под металлочерепицей. Домик делаем на участке, куда не заведено ни электричество, ни водопровод.

Проект дачного домика размером 6х4 м
Как соорудить фундамент
Использование дачного домика зимой требует сооружения ленточного фундамента, утеплить который значительно проще, чем другие виды. Под террасой утепление не нужно, поэтому будет достаточно установить там столбики. Клееный брус не очень тяжелый, поэтому фундамент не будет слишком массивным. Устраивать его на глубину промерзания грунта нет смысла, так как посещаться домик будет только несколько раз за всю зиму.
Поэтому траншею под фундамент копаем на глубину 60 см. Внутри периметра ленты устраиваем керамзитовое утепление, по причине чего не нужно поднимать ее на большую высоту. Достаточно будет и 20 см. Под печь основание размерами 100х100х80 см заливается одновременно с основным фундаментом.

Дом облицован декоративным камнем
Для сруба используем клееный брус, обладающий сечением 150х150 мм, в связи с чем оптимальная ширина ленты будет 25 см. Под террасу ставим 4 столбика с квадратным сечением при стороне 25 см, которые заглублены на 60 см и имею аналогичную высоту с ленточным фундаментом.

Небольшой дом и хозяйственная постройка на дачном участке
Залитый фундамент оставляют на неделю для высыхания, после чего разбирают опалубку и засыпают внутренний период ленты керамзитом. Для этого убирают дерн и плодородную почву. Делают песчаную подушку, которую утрамбовывают. Только после этого производят засыпку на высоту фундамента. Под взятые размеры понадобится 4,8 м? керамзита.

Проект деревянного дачного дома
Сооружение стен и крыши
Разные проекты дачных домиков для 6 соток, фото которых можно чаще всего встретить, обладают большим разнообразием способов укладки бруса. Выберем метод с чашечками, как у бревенчатых стен. Первый ряд бруса укладываем таким образом, чтобы лаги для пола выходили на столбики террасы. Внутри дома эти лаги будут располагаться через 40 см. Их можно изготовить из бруса 150х150 мм. Это позволит обойтись без устройства чернового пола. Достаточно будет уложить на них фанеру или половую рейку.

Небольшая дачная постройка для летнего времяпрепровождения
На террасе делаем столько лаг, сколько у нас имеется столбиков. По ним затем уложим черновой пол из плах, по которым можно делать любое покрытие. Брус последующих рядов скрепляется нагелями. Потребуется соорудить стены в 20 рядов, чтобы высота была нормальной. То есть понадобится 80 брусьев. Половина из них 4 м, а вторая половина 6 м. Крыша для дачного домика делается из брусков 50х100 мм и закрывается металлочерепицей.

Дачный дом может стать полноценным комфортабельным жилищем
Предложенный вариант дачного домика потребует определенных затрат, которые все же будут гораздо меньшими, чем при строительстве полноценного загородного дома.
Проекты двухэтажных дачных домов
Строительство двухэтажного дома не такая уж дорогая затея. Фундамент то все равно нужен один, пусть и более мощный, но его стоимость возрастает не в два раза, а процентов на 60%. Размеры и утепление кровли от этажности вообще не зависят, так что тут увеличения вложений не требуется. Добавляются расходы на стены — их площадь в два раза больше, но в целом стоимость квадратного метра площади получается дешевле, чем при строительстве аналогичного одноэтажного жилища. Потому многие ищут проекты двухэтажных дач.

Проект небольшого двухэтажного дома для дачи с пристроенным гаражом: жилая площадь 100 кв. м, общая 127 кв. м, гараж на одну машину
Приведенный выше проект разработан для газобетонных или керамических строительных блоков. Подходит для вытянутых в длинну участков. Пристроенный гараж очень удобен при использвоании — из гаража стазу можно попасть в дом. Еще плюс: такой вариант экономит место на участке, а его на даче всегда мало, какой бы величины участок у вас ни был.
В данном варианте планировки с тыльной стороны дома предполагается просторная терраса. В общую площадь дома она не входит. Интересный дизайн делает дом непохожим на другие: большое окно на полтора этажа, кубической формы гараж и навес перед домом — не слишком влияют на ценник, но делают дом уникальным.

Проект двухэтажного дачного дома с пристроенным сбоку гаражом
Еще один проект дачи на два этажа с пристроенным сбоку гаражом представлен выше. Этот вариант больше подходит для квадратных или широких участков. Пятно застройки в плане — 10*10 метров, жилая площадь — 108 квадратных метров. Необычный облик этому дому придают высокие окна второго этажа. Свою лепту вносит и подбор отделочных материалов, сочетание светло-бежевого и коричневого цветов. В общем и целом интересный проект.

Проект дачи с балконом по периметру второго этажа
Нестандартного вида двухэтажный дом с балконом, который опоясывает все здание. С тыльной стороны находится обширная открытая терраса. Кровля четырехскатная, что усложняет конструкцию, но придает постройке особый колорит.

























































