Сооружение каркаса
Существует множество вариантов возведения стен бани. Мы воспользуемся самым простым и быстрым – каркасным. Для его возведения нам понадобятся следующие материалы:
- деревянные бруски (5х5 см);
- доски (минимальная толщина – 2,5 см);
- фольга/пленка для гидроизоляции;
- теплоизоляция.

Каркасная мини баня: наиболее простой и быстрый вариант постройки
По предварительно подготовленному проекту собирается каркас из брусьев. С внутренней стороны обшивается досками. В качестве крепежей можно использовать обычные саморезы или анкера. Не забываем про тепло- и гидроизоляцию. Первым монтируем материал, не пропускающий наружу тепло из баньки. В этом качестве можно использовать керамзит, опилки или минеральную вату (редко используется). Для создания гидроизоляционного слоя подойдет битумная мастика. Финальный этап строительства стен – внутреннее досочное покрытие (не обязательный, но желательный элемент).
Дело осталось за малым – возвести крышу. Сначала подготавливаем стропильную систему и монтируем ее на каркас. После начинаем укладку кровли: подойдет металлочерепица, шифер и т.д. Не забываем про дымоход – для него необходимо оставить свободный проем на крыше.
Чтобы придать внешнему виду бани завершенность, в качестве защитного и одновременно декоративного элемента используется вагонка или блок-хаус. Вагонка – наиболее распространенный вариант отделки внешнего каркаса бани. Этот материал дешев, практичен и долговечен. К тому же, он является довольно удачной имитацией деревянного бруса. Блок-хаус внешне похож на вагонку, но отличается более презентабельным внешним видом и качеством древесины.

Обшитая внешне под дерево мини баня будет радовать своим эстетичным видом
Материалы необходимые для постройки самодельной мини бани
Перед тем, как построить мини баню следует подготовить все необходимые материалы:
- брусья с сечением 10х10 см, 3 м в длину – 25 шт.;
- обрезные доски толщиной 2 см – 1,5 метра кубических;
- обрезные доски для пола толщиной 4 см – 0,3 метра кубических;
- строительный пенопласт толщиной 10 см – 33 метра квадратных;
- брусья для стропил 10х5 см, 2 м в длину – 8 шт.;
- 2 баллона монтажной пены;

- цемент на фундамент – 4 мешка по 50 кг;
- материал для кровли, например шифер или рубероид, или черепица – 15 метров квадратных;
- вагонка – 0,37 метров кубических;
- алюминиевая фольга для пароизоляции – 20 метров квадратных;
- сайдинг – 23 метра квадратных;
- кирпичи для печи – 250 шт. либо ТЭН;
- дверка, которая закроет печь – 1 шт.;
- два бака, габариты которых составляют 37х32х12 см.
Особенности проектирования бани
На подготовительном этапе выбор готового проекта либо его самостоятельная разработка является важнейшим шагом. Именно от грамотного проектирования зависит комфорт строения.
Кроме того, наличие проекта дает возможность правильно рассчитать расход необходимых стройматериалов, и продумать все этапы возведения постройки.
При самостоятельном проектировании следует принять во внимание несколько основных правил.
Оптимальная высота потолка в помещении должна составлять около 2 метров для сохранения тепла и удобства пользования.
Дверь рекомендуется ориентировать в южном направлении, а оконные проемы по возможности должны смотреть на запад.
Для грамотно распределения тепла размер двери должен составлять 180 см на 60-80 см.
Особое внимание следует уделить системе вентиляции воздуха и слива воды.
Не рекомендуется для внутренней отделки использовать хвойные породы, способные выделять смолу.
При планировании внутреннего расположения комнат и оснащения важно совместить функциональность помещения и эффективность распределения тепла. Интересные и полезные идеи можно найти, посмотрев фото бани внутри.
Коммуникации
Спроектировать местоположение коммуникаций необходимо еще на начальном этапе разработки мини-бани. Проводку необходимо спрятать под обшивку, при этом ее прокладывают в специальные металлические рукава. Кабель стоит брать с двойной оплеткой. Также необходимо сделать заземление. Для освещения выбирайте герметичные светильники. Их можно монтировать как на потолке, так и на стене.

Вентиляция – важный элемент обустройства каждой бани
Логичнее использовать бак, в котором будет нагреваться вода от тепла печи. Важным моментом является обустройство вентиляции, для этого в потолке делаются вентиляционные решетки с выходами под скатом крыши. Не забудьте соорудить сливную яму, куда будет стекать вода. Она должна быть необычных размеров, внутрь засыпают пористый камень, который служит определенным фильтром.






Проект маленькой бани
Маленькая баня обладает огромным количеством преимуществ. Ее обслуживание куда более экономично, поскольку для прогрева маленького помещения требуется меньше времени и энергоресурсов. Еще одно достоинство — небольшие затраты на покупку материалов для строительства.
Маленькое помещение для бани не будет лишено комфорта, потому что сегодня их строят с использованием современных технологий. Для строительства чаще используют профилированный или клееный брус. При этом разрешено использовать простой проект одноэтажного дома, в который будет встраиваться помещение для парилки. Также небольшую баню можно построить по канадской технологии: перед строительством нужно возвести каркасно-щитовую конструкцию для деревянной парилки.
Для отопления бани можно использовать твердотопливные, газовые и электрические печи. Сам агрегат нужно располагать внутри парной, а топку — в предбаннике.
Установок лавок и прочей оснастки сауны
Правильная сауна должна иметь высоту помещения от 1,9 до 2,1 метра. Устанавливая лавки, необходимо учесть, что человек, сидящей на верхнем ярусе, должен чувствовать себя комфортно не упираясь макушкой в потолок (детальнее: “Как сделать лавки в баню своими руками – от чертежей до готовых лавок”). Тогда нижняя полоса лавок будет иметь высоту в 65 сантиметров. Если такая конструкция создает дискомфорт для посетителей, то под лавкой можно сделать ступеньку высотой в 20-25 сантиметров.


Прочие условия обустройства парного отсека:
для устранения эффекта замкнутого пространства можно установить комбинированные двери со стеклами или тонировкой
Очень важно, чтобы дверь была без каких-либо запоров и отворялась в сторону из парного отделения;
стоит учесть, что дровяная каменка очень сложна в закладке, а потому лучше всего сделать выбор в пользу электрических печей, которые можно приобрести во многих магазинах. Размещается такая печь с зазором от пола в 20 сантиметров, а к стене крепит шурупами;
для увеличения безопасности печку необходимо огородить деревянным заборчиком на расстоянии в 5 сантиметров
В пустоты между трубчатыми электронагревателями закладываются камни на минимальном расстоянии;
в последнюю очередь монтируются осветительные приборы и выключатели, после установки которых можно вводить сауну в эксплуатацию.
Вариант постройки мобильной бани из бруса
Самый надежный вариант – это мобильная баня из бруса. Сделать ее можно вот по такой схеме:

Этапы строительства походной баньки на твердом деревянном каркасе — идеальный малобюджетный вариант для дачи
Но самый простой и проверенный вариант – крепкая и удобная походная баня с печкой. Ее себестоимость вместе с пошивом и приспособлениями – втрое дешевле магазинной, которая имеет к тому же еще и меньший размер. А вырученные деньги можно потратить на хорошую походную печь, качественные камни и, конечно же, мясо для шашлыка.
Сделанная по этому проекту баня способна вместить 8 человек – и еще останется немало места благодаря раздуванию бани горячим воздухом. И такую баню можно даже смело использовать как быстро разворачиваемый навес от дождя, чего не провернуть с магазинным вариантом.
Итак, ее ширина – 2м, высота – 2м, длина – 2,5 м, вес – 1,9 и размеры в сложенном состоянии – 40х20х20 см. А вот, что понадобится из материалов:
- Стропы 50 мм 0,5 м длиной и 25 мм 2 м длиной.
- 2,5 метров тесьмы 15 мм.
- Резника (2 см) – 2 метра.
- Лавсановые или нейлоновые нитки – 1 катушка.
- 7 мм молния с двухсторонней собачкой, 2 метра.
- Шнур полиэфирный — 16 м.
Итак, все куски по выкройке нужно сшить нейлоновыми нитками двойным швом – сначала детали стен, затем уже к ним нижние отвалы, которые не сшиваются с собой по углам. Последней нужно приладить крышу, замок-молнию и соединительную тесьму. Чтобы сделать петли-оттяжки, нужно вдвое сложить 50 сантиметровый кусок стропы 25 мм диаметром и 12 см стропы шириной 5 см – так, как показано на схеме. К самой крайней петле следует привязать шнур, которым и будет растягиваться и закрепляться банный тент.

Раскрой ткани для изготовления походной бани
Теперь нужно изготовить петли-резинки – из сложенной пополам отрезком резинки и пришить их в нижних углах тента. В получившейся средней верхней петле при установки бани и будут вставляться верхние концы столбиков. Ко всему сами резинки можно еще оттягивать прямо на колышки, даже не продевая в них столбики.
Осталось сшить для новой походной бани красивый и удобный чехол, и можно отправляться в поход.
Сооружение каркаса
Существует множество вариантов возведения стен бани. Мы воспользуемся самым простым и быстрым – каркасным. Для его возведения нам понадобятся следующие материалы:
- деревянные бруски (5х5 см);
- доски (минимальная толщина – 2,5 см);
- фольга/пленка для гидроизоляции;
- теплоизоляция.

Каркасная мини баня: наиболее простой и быстрый вариант постройки
По предварительно подготовленному проекту собирается каркас из брусьев. С внутренней стороны обшивается досками. В качестве крепежей можно использовать обычные саморезы или анкера. Не забываем про тепло- и гидроизоляцию. Первым монтируем материал, не пропускающий наружу тепло из баньки. В этом качестве можно использовать керамзит, опилки или минеральную вату (редко используется). Для создания гидроизоляционного слоя подойдет битумная мастика. Финальный этап строительства стен – внутреннее досочное покрытие (не обязательный, но желательный элемент).
Дело осталось за малым – возвести крышу. Сначала подготавливаем стропильную систему и монтируем ее на каркас. После начинаем укладку кровли: подойдет металлочерепица, шифер и т.д. Не забываем про дымоход – для него необходимо оставить свободный проем на крыше.
Чтобы придать внешнему виду бани завершенность, в качестве защитного и одновременно декоративного элемента используется вагонка или блок-хаус. Вагонка – наиболее распространенный вариант отделки внешнего каркаса бани. Этот материал дешев, практичен и долговечен. К тому же, он является довольно удачной имитацией деревянного бруса. Блок-хаус внешне похож на вагонку, но отличается более презентабельным внешним видом и качеством древесины.

Обшитая внешне под дерево мини баня будет радовать своим эстетичным видом
Составление проекта
Используемая схема прямо зависит от того, какой тип бани создается. Даже самая бюджетная постройка должна быть оптимизирована под определенный тепловой и влажностный режим. Чаще всего имеет смысл отталкиваться от апробированных целевых схем.
На фото показано отличное устройство русской бани, содержащее:
- место для купания;
- душевую зону;
- посадочные полки.
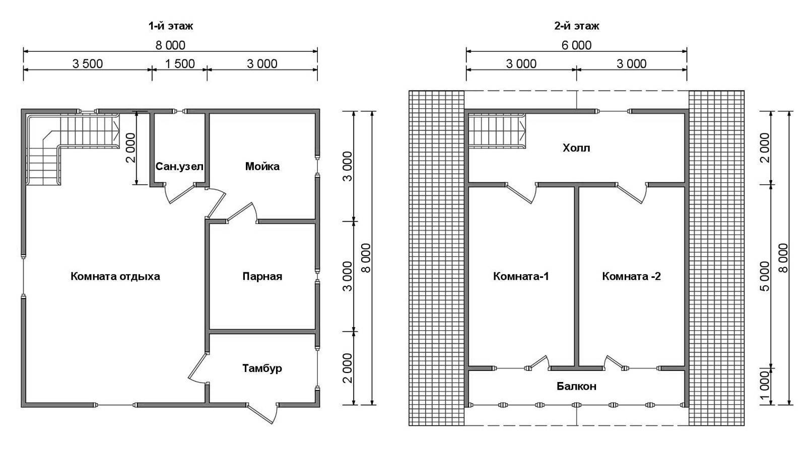
Если маленькое строение не удовлетворяет, можно ориентироваться уже на баньку средней площади. Тут парная и душевая четко обособлены. В 8-метровой комнате отдыха можно спокойно находиться вдвоем и даже втроем, не испытывая тесноты. Разработчики предусмотрели даже обособленный санузел. Использование тамбура существенно улучшает комфортабельность постройки, защищая моющихся от сквозняков.
При самой большой площади можно ориентироваться и на такие проекты. Предбанник, гардероб и зона отдыха вынесены в один из углов. Кроме них, нашлось и место для прихожей, что порадует любителей простора и гармонии. Парильное и моечное отделение весьма велики. Однако и цена такого строения будет ощутимой для личного бюджета.
Чертежи конструкций маленькой площади обычно подразумевают слияние гардеробной и досуговой зон. Зато можно будет построить все своими руками в короткий срок. Очень хорошо, если все помещения выстроены последовательно, и минимизировано количество проходных комнат. Дополнение верандой или террасой приветствуется в любом случае.
В самых больших банях могут выделять:
- бассейны;
- несколько зон отдыха;
- 2 или более изолированных парилок.
Еще один вариант включает:
- санузел;
- прихожую;
- комнату отдыха;
- разделенные мойку и парилку;
- довольно крупную террасу.
Зона охлаждения и отдыха
С целью охлаждения тела в бане обустраивают отдельное помещение (или его выносят наружу). Минимальная площадь бассейна составляет 6 м², а глубина – 1,3 м
Важно, чтобы была возможность понижения уровня воды для детей хотя бы до 0,5 м. Площадь бассейна рассчитывается таким образом: 50 см² на место в парилке
Бассейн обустраивается рядом с парильным помещением.
Бассейн в банеБассейн в бане
Стенки и дно бассейна выкладываются светлым, непористым и легко моющимся материалом (к примеру, морозоустойчивой плиткой). Дно выполняется под уклоном в сторону слива. Также для удобного спуска следует позаботиться о ступеньках с перилами.
Пол рядом с бассейном также выполняется под уклоном к мусоросборникам. Подача воды будет осуществляться через специальное отверстие в дне, а ее излишки будут отводиться посредством специального желобка в канализацию. Если уровень воды равен 50 см и меньше, то ее необходимо все время менять.
Устройство бассейна в бане
Воду следует регулярно хлорировать (максимальная концентрация хлора – 0,3 мг/л). Помимо воды, для охлаждения может быть использован снег, а также обычный свежий воздух в закрытом сооружении, которое соединено с баней.
Проект бани с бассейном
Площадь зоны охлаждения рассчитывается так: 2 м² для каждого места в парилке. Помещение обставляется лавочками в необходимом количестве, желательно наличие зеленых насаждений.
Габариты парилки

На выбор габаритов парной влияют такие параметры:
- частота использования;
- количество отдыхающих;
- рост и другие индивидуальные особенности людей;
- размещение полок;
- дизайн оформления.
Потребности хозяев различаются. Кому-то хватает маленькой баньки из двух комнат, другим потребуется возвести двухэтажный банный комплекс для полноценного отдыха.
Размеры полок выбирать нужно исходя из положения приема процедур:
- Чтобы париться лежа, придется сделать длину полки 2 м. При длине в 1,5 м отдыхающим придется лежать с полусогнутыми ногами.
- По ширине полки от стены должны быть минимум 0,4 м. Этого хватит, чтобы сидеть было удобно.
- Чтобы ноги не касались пола, ширину увеличивают до 0,8 м.
- При конструкции полок в виде лежаков расстояние от стены делают в 1,5-1,8 м.
Требования к сооружению и регистрация
Требования к постройкам подобного типа прописаны в нескольких документах:
- СНиП 2.02.01-83*;
- СНиП 2.01.07-85;
- СНиП II-Л.13-62;
- СНиП II-25-80;
- СНиП III-21-73;
- СНиП 21-01-97.
Требования к участку, на котором будут проводиться строительные работы:
- Грунт должен быть плотным, без смещений, набуханий.
- Допускается уклон в любом направлении за исключением северного.
- Постройку лучше размещать на возвышенности.
Расположение бани относительно других объектов:
- дороги — 5 м;
- скважина или колодец — 12 м;
- водоемы — 22 м;
- большие кустарники — 1 м;
- лес — 15 м;
- деревья — 3 м;
- жилые дома — 8 м.
Расстояние до соседнего участка не должно быть меньше 1 метра.
Требования пожарной безопасности:
- Печь нужно устанавливать на прочном основании, возвышаться над уровнем пола. Основание следует закрыть металлическим листом.
- Двери должны открываться в сторону выхода из бани.
- Деревянные поверхности необходимо пропитать антипиреном.
- Дымоход следует закрыть негорючим кожухом.
- Поверхности, расположенные возле печи, необходимо закрыть слоем базальтовой ваты, поверх которой закрепляются отражающие жар листы.
- Перед топочной камерой на полу необходимо разместить металлический лист, который защитит пол от выпадающих углей.
При строительстве нужно учитывать розу ветров
Важно, чтобы дым не задымлял жилые здания. Лучше разместить баню на возвышенности, чтобы она не подтапливалась талыми водами
Также нужно уделить внимание регистрации здания. При возведении классической бани получать разрешение на проведение строительных работ не нужно
Регистрация бани нужна, если планируется:
- коммерческое использование помещений;
- совмещение парилки с домом.
Для получения разрешения на строительство нужно подготовить ряд документов, обратиться в органы местного управления. Если не зарегистрировать постройку, на владельца бани могут наложить штраф.
Как построить печь в сауне
Для всех банных печей есть единое условие, выполнение которого является обязательным — удлинение топочного канала, чтобы дверца находилась в предбаннике (дрова вкладываются в неё именно в том помещении).
Дверца печи должны находиться в предбаннике
Можно поставить металлическую печь, купив её в готовом виде, или самостоятельно сложить кирпичную (она гораздо лучше в силу её более медленного нагрева и длительной отдачи тепла). Самым сложным при этом будет грамотно вывести дымоход через деревянную крышу, изолировав его специальными металлическими листами и вермикулитом.
При установке печи самым сложным является вывод дымохода
Камни нужно выбирать максимально тщательно. Они должны обладать следующими качествами:
- термостойкость (не разрушаются при перепадах температуры);
- теплоёмкость (долго отдают тепло);
- экологичность (при нагреве не выделяют вредные вещества);
- однородность и одинаковый коэффициент теплового расширения (инородные вкрапления с другим тепловым расширением могут взрываться при нагреве);
- круглая форма (она улучшает процесс циркуляции горячего воздуха).
Камни должны быть:
- до 13 см для первого слоя на решётке;
- до 9 для промежуточного слоя;
- до 6 для верхнего слоя.
Камни для бани должны быть круглой формы
Если каменка будет сделана правильно, то вас ждут незабываемые моменты подачи пара.
Русская традиционная парная с каменкой может быть дополнена сухими травами для аромата
Материалы и технологии для сооружения бани
Свой дачный участок позволяет городскому жителю вырваться за пределы каменных джунглей города, быть ближе к природе. В отличие от загородного дома дачный домик обычно миниатюрный, поэтому доставит такое же удовольствие, как и большая, баня мини, компактная, отделанная с душой. Промышленность строительных материалов быстро развивается, причём, даже в такой древней сфере как деревянное строительство, ежегодно появляются новые технологии, взять хотя бы клееный брус или каркасные дома.
Выбор лучших материалов
Выбирает проекты из какого материала строить свою мини баню сам хозяин дачного участка. Долговечнее каменные бани, но тогда это уже фундаментальное сооружение, где нужно предусмотреть коммуникации, отвод воды и т. д. Компактная баня строится из таких материалов, которые дёшевы и практичны, относительно долговечны, соответствуют санитарным требованиям:
- дерево (бревна, оцилиндрованные бревна, брус, клееный брус, лафеты);
- стеновые материалы;
- тепло-паро-гидроизолирующая рулонная или листовая продукция;
- кровельные материалы;
- отделочные изделия.
Дачный домик и баня к нему должны гармонировать друг с другом, а если домик из дерева, то баню целесообразно построить из него же. Наиболее быстрый способ строительства, домика и бани, это каркасный. Он заключается в сооружении на фундаменте лёгкого, прочного деревянного каркаса из бруса, применение дешёвых стеновых и отделочных материалов, отделку стен, теплоизоляцию.
Предлагаем видео, из которого вы узнаете, как быстро и дешево построить баню своими руками
Современные отделочные, кровельные, теплоизоляционные материалы прекрасно подходят для каркасного сооружения, будь то домик на даче или баня. Каркасная мини баня хороша тем, что быстро возводится и быстро разбирается.
Технологии для строительства компактных конструкций
Когда принято решения, что мини баня для дачи, построенная своими руками, обойдётся дешевле, то после выбора материалов следует разобраться в технологиях. При решении строить мини баню из брёвен предполагаются технологические этапы, указанные ниже.
- Выбор участка.
- Закладка фундамента.
- Возведение сруба.
- Сооружение кровли.
- Настил полов.
- Утепление.
- Отделочные работы.
Пусть баня это и небольшое сооружение, этапы и качество работ аналогичны большой стройке. Популярным методом строительства является каркасный, здесь необходимо соблюдать определенную последовательность.
- Выбор участка.
- Закладка фундамента.
- Строительство каркаса.
- Взведение стен.
- Сооружение кровли.
- Настил полов.
- Утепление.
- Отделочные работы.
Если вы решили строить мини баню из дерева, а технологию выбрали каркасную, то вы возведёте сооружение быстро, только здесь необходима точность при сооружении каркаса. Если материал у вас бревно или брус, то времени на строительство потребуется больше и имеет смысл увеличить размеры бани.

Вариант компактной мини бани
Мини бани из кирпича, керамзитобетона или пенобетона, также сооружаются, у них свои, несколько отличные от деревянных материалов, технологии строительства. Признано только, что лучшим материалом для бани является, всё же дерево.
Компактные бани сооружают тогда, когда потребность в них есть большая, но только в летний сезон. Если большую часть года баня простаивает, то незачем делать её капитальной и большой. Если вас устраивает мобильный вариант, то основательного фундамента не потребуется, достаточно поставить баню на бетонные столбики, расположенные по периметру сооружения.
8х8
- большой простор для интеграции вспомогательных помещений;
- необходимость зонирования размещенных объектов;
- возможность обустройства просторной террасы;
- раздельное размещение парилки и мойки;
- 3-4 спальных местах на мансарде;
- при желании можно оформить и компактный бассейн.
Вот уж где можно действительно оторваться! Проект бани 8 на 8 с мансардой может включать буквально все, что ваша душа пожелает: начиная от удобного предбанника и просторного входа и заканчивая просторной бильярдной наверху по соседству со спальной комнатой. Квадратная основа постройки позволяет использовать буквально каждый сантиметр свободной площади с пользой для дела. Можно даже оформить выход на балкон. Разве не замечательно выйти и подышать свежим воздухом, наслаждаясь прекрасным отдыхом?

Конечно, для того, чтобы комфорт был не только на бумаге, но и на практике, есть смысл позаботиться о надежной гидроизоляции напольного основания. В таком случае вы заметно продлите срок службы используемых материалов и добьетесь практически идеальной безопасности использования постройки.





Водоснабжение и водоотвод
Затраты на сооружение миниатюрной бани можно свести к минимуму, если устроить компактный и эффективный водоотвод. Для его создания необходимо провести земляные работы и выкопать на некотором отдалении от сооружения небольшую яму объемом 100 литров. Внутри неё следует установить бочку, у которой отсутствует дно. Благодаря ей будет исключено обваливание стенок ямы.
Следующим действием необходимо провести трубопровод, который должен идти непосредственно от парного отделения. Если баня будет использоваться в зимнее время, тогда следует углубить пластиковую трубу на глубину до 1 м. Чтобы в бане всегда была горячая вода, необходимо потратиться на покупку электрического ТЭНа.
С его помощью можно легко нагреть незначительный объем воды. Это существенно сэкономит время на растопку печи в мини-бане. Емкость для воды следует располагать повыше. В этом случае будет возможность для ее использования без подкачки. Некоторые владельцы подобных сооружений дополнительно устанавливают смеситель для контроля расхода воды.
Слив, устроенный в мини-бане, при желании можно подключить к канализации садового домика. Такой вариант дает возможность для сокращения расходов на обустройство этой системы. Коммуникации следует располагать под небольшим уклоном. Это позволит избежать застаивания в них жидкости. На дно ямы, в которую будет стекать использованная вода, стоит уложить слой керамзита или крупного щебня. Сверху необходимо устроить конструкцию утепления для того, чтобы в зимнее время приямок не перемерзал. Для этого будет вполне достаточно укладки слоя из грунта и глины.
Выбор материала
Для строительства можно использовать:
- кирпич;
- пено- и газоблоки;
- арболит;
- дерево.
Для строительства мини-бани лучше использовать дерево. Преимущества материала:
- Экологичность. Материал не выделяет вредных веществ.
- Привлекательный вид. Не нужна дополнительная отделка стен бани снаружи.
- Высокие теплоизоляционные свойства.
- Простая обработка ручными, электроинструментами.
- Низкая цена.
Недостатки:
- восприимчивость к воздействию влаги, образованию грибка, плесени;
- деформация при перепадах температуры;
- высокая пожароопасность;
- длительный период усадки.
Из дерева можно построить компактную баню с тонкими, но хорошо утепленными стенами.
Полезные рекомендации
Возведение небольшой частной бани на приусадебном участке – сложное и ответственное мероприятие. Чтобы получить достойный результат своих трудов, специалисты рекомендуют составить детальный план строительного процесса. Это упростит прохождение основных этапов работ и позволит избежать серьезных ошибок.
Пошаговая инструкция по строительству мини-бани предусматривает следующие этапы:
- Выбор места на участке под застройку.
- Возведение основания для бани.
- Строительство стен, перегородок и межэтажных перекрытий.
- Установка стропильной системы.
- Теплоизоляция, гидроизоляция и пароизоляция стен, потолков и полов.
- Наружное утепление и обшивка.
- Монтаж отопительного оборудования и дымохода.
- Настилка полов, установка дверных и оконных конструкций.
- Подвод коммуникаций.
- Внутренняя облицовка помещений.
- Выбор и расстановка мебели, банных принадлежностей.
Особенности проектирования внутреннего пространства бани
При создании любого проекта первым делом осуществляется выбор подходящего материала для возведения сооружения. И баня в этом вопросе не исключение. Так, при строительстве банной конструкции строители используют, в основном такие материалы, как пеноблок, кирпич, брус или цельное бревно. Профессионалы рекомендуют предпочтение отдавать натуральным материалам – древесине. Но это уже не вопрос вкуса, а финансовых возможностей.
При проектировке небольшой по площади бани необходимо придерживаться тех же технологий, что и при планировании бани стандартных размеров
Но в нашем случае, все же, важно учитывать некоторые моменты:
- Для возведения небольшой бани абсолютно не требуется мощный сложный фундамент, поскольку речь идет о небольших нагрузках. Поэтому, дабы облегчить процесс земляных работ и сократить расход средств, вполне можно обойтись ленточным/опорно-свайным.
- К расположению функциональных зон следует подходить очень серьезно, поскольку в небольшой по площади конструкции все огрехи и несовершенная планировка сразу будут заметны и непременно причинят неудобства.
- Печь лучше всего располагать в предбаннике, чтобы она не мешала заходить из моечной в парилку и наоборот. Топка должна быть максимально защищена от самовозгорания.
- Принцип постройки помещений в мини-бане должен быть абсолютно таким же, как и у стандартной. Так, полки необходимо устанавливать вдоль глухой стены, дверной порог максимально поднимать вверх, а коробку делать низкой. Все это делается с целью задержки пара внутри даже при открывании двери.
- В банных помещениях ни в коем случае не должно быть замков, а все двери должны открываться только наружу.

Базовый чертеж мини бани: компактное и функциональное решение для дачи
Итак, рассмотрим простейший проект банной конструкции. Любая баня должна иметь четыре основные комнаты: предбанник, моечная, парилка и комната отдыха. Необходимо четко понимать, какие минимальные габариты может иметь каждая из них. Так, для предбанника и парилки можно выбрать оптимальные размеры – 1,5х2 м; моечная может быть площадью 1х1 м; а комната отдыха в 2 раза больше моечной.

























































