Варианты постройки туалетов

Бывает несколько видов туалетов в виде скворечника, шалаш, избушка или домика. Чертеж дачного туалета с размерами типа «Скворечник» выполняется из дерева, и обшита любым другим материалом. Строится она над выгребной ямой. Если вам сложно самостоятельно составить чертеж, можно воспользоваться готовыми проектами.
При строительстве следует использовать строительный уровень чтобы контролировать ровное размещение конструкции. Не стоит забывать про наличие вентиляции, в качестве которой может быть труба. Она должна быть выше уровня крыши. Для того чтобы утеплить туалет можно использовать пенопласт, украсить внутри можно по желанию.
Готовый проект «Скворечника» с размерами

Основываясь на чертеж дачного туалета «Скворечник» строим «Шалаш», он имеет более сложную конструкции, но результат того стоит. «Шалаш» имеет много разных вариантов оформления, для этого можно использовать свою фантазию или интернет. Размеры можно использовать из предыдущего проекта.
Начинать строительство нужно с ямы туалета, в ней будут размещены бетонные блоки.
Чертеж дачного туалета «Шалаш»

Особенной частью данной постройки является двускатная крыша в форме треугольника. Если это дачный туалет чертежи размеры подбираются индивидуально в связи с количеством людей, которые будут пользоваться туалетом.
Стройка состоит из нескольких этапов. Изначально монтируем фундамент с использованием изоляционного материала, который защитит от влаги.
Строительство «Шалаша» начинается с установки фундамента, затем нижней части каркаса 1 на 1метр и постройки выгребной ямы. Основание нужно обработать антисептиком.
Дальше нужно построить переднюю и заднюю часть каркаса используя чертежи, которые вы составили или готовые. На заключительном этапе следует доработка каркаса.
Туалет можно обшить выгонкой или оставшимися с работы досками. Крышу можно изготовить из различных материалов длиной 1,8 м, она упирается на переднюю и заднюю части каркаса и закрепляется. Материал для крыши можно подобрать в зависимости от вашего вкуса. Это может быть металл, дерево, крыша из шифера или же профнастил.
При установке двери следует сразу же прикрепить к ней ручку и крючок. По окончанию работ нужно обработать туалет лаком или краской для улучшения внешнего вида постройки.
Правильное место для постройки
Необходимо помнить, что существует достаточное количество различных норм и правил, которых нужно придерживаться для размещения клозета на улице. Основное правило, следуемое к соблюдению – создание условий, при которых будет осуществляться минимальный контакт отходов с грунтовой водой.
Правила размещения туалета на дачном участке
Перед тем, как сделать туалет на даче самому, важно изучить основные критерии, которых стоит придерживаться при выборе места его постройки:
- Необходимое расстояние от ближайшего водного участка должно быть не менее 30 метров. Если геолокация водоема находится ниже по уровню от постройки, то сооружение нужно перенести в другое место или же ниже источника воды.
- Расстояние от смежных ям таких, как подвал, погреб и так далее, должно быть не менее 15 метров.
- Расстояние от жилых построек или других сооружений должно быть не менее 8 метров.
- Расстояние от мест поселения или обитания животных – не менее 5 метров;
- Расстояние от насаждений – не меньше 1 метра.
- Расстояние от ограждения близлежащей территории – не менее 1 метра.
- При постройке дачного туалета нужно также учитывать направление ветров, чтобы не беспокоить неприятным запахом своих соседей.
В случае невозможности построить выгребную яму, вследствие протекания грунтовых вод, можно воспользоваться альтернативным вариантом и построить своими руками дачный туалет типа люфт-клозет или пудр-клозет. Альтернативным вариантом может выступать биотуалет. В подобных конструкциях отходы жизнедеятельности человека не коснутся грунтовых вод.
Требования к расположению построек на дачном участке, в том числе и туалетов
Строгий учёт правил в соотношении построек на вашей территории и территории ваших соседей позволит вам правильно построить туалет на даче с соблюдением экологических норм.
Общие сведения
Фронтоны и стены теремка в обычном исполнении обшивают посредством шпунтованной вагонки. Крыша у него двускатная, с большим углом наклона. сборочные и отделочные нюансы детально прописаны ниже. Туалет, который оформлен в виде теремка, по окончанию сборочного процесса устанавливают на заранее подготовленное основание. Это яма, в которую закладывают кольцо из бетона, которое накрыто в будущем монолитной плитой.
Вариации оформления
Существенно видоизменить исполнение туалета в виде теремка можно благодаря его отделки. К примеру, для обшивки стенок и фронтонов допускается применять:
Обрезные доски.
- Блок-хаус.
- Имитацию профилированного бруса.
- Простую вагонку.
Так как постройка сама по себе предназначена для монтажа на открытом пространстве, первый из вариантов, который предложен, лучше не применять для отделки хотя он и самый дешевый. Все дело в том, что из-за постоянных температурных перепадов и изменений влажности в этой отделке спустя время появляются достаточно заменые зазоры, что для теремка с его главной функцией нехорошо.
Вагонка и всевозможные имитации, установка которых производится при применении системы «шип-паз», исключает возможность образования зазоров даже по истечению большинства лет эксплуатационного процесса. Более того, подобный тип отделки выглядит более аккуратно, придавая и без того необычной постройке презентабельности. Новый метод разнообразить внешний вид туалетного дизайна в виде теремка – использование различных материалов для кровельного обустройства.
Для этого самым лучшим образом подойдет:
- Гибкая (то есть мягкая) черепица.
- Ондулин.
- Металлочерепица.
- Профилированный настил.
Важно отметить, что последний вариант чуть отличается от других монтажных технологий. Данный момент упомянут ниже, в разделе, где представлено поэтапное описание строительного процесса
Далее видоизменять постройку можно благодаря применению различных материалов для отделки и защиты древесины.
Внутри и снаружи деревянную обшивку можно покрыть при помощи:
- Масла для древесины.
- Морилки.
- Лакокрасочным материалом требуемого цвета.
- Бесцветным лаковым составом.
Чтобы не просто украшать отделку, но и…
«Шалаш»
Когда грунтовые воды подходят близко к поверхности, то единственным вариантом обустроить отхожее место является пудр-клозет. Выгребной ямы в таком туалете нет, а под стульчаком скрывается емкость (бак), которую нужно периодически опорожнять. Чтобы запахи от сортира не распространялись по всему участку, рядом со стульчаком ставят резервуар с опилками, пеплом или торфом. После посещения туалета фекалии «припудриваются», а по мере наполнения емкости вывозятся на компостную кучу.
Для пудр-клозетов часто ставят кабинки в форме шалаша. Сделать подобную конструкцию туалета своими руками можно за пару дней, да и стоимость материалов, откровенно говоря, воодушевляет.
Монтаж кабинки производится в следующем порядке:
- Для фундамента можно использовать песчано-цементные блоки или выложить по периметру основания шалаша ленту из красного кирпича. Фундамент покрывают рубероидом.
- Чертеж туалета «шалаш» показан ниже. Первым делом изготавливают переднюю и заднюю стенки кабинки. Соединяют их между собой брусом 100 х 100 мм и обрезной доской, которая будет исполнять роль обрешетки крыши. Из бруса собирают и крепят к задней стенке каркас стульчака.
- Туалет обшивают изнутри вагонкой. В настиле стульчака вырезают отверстие «очка». Устанавливают кабинку на фундамент.
- Крышу можно сделать из металлочерепицы или профнастила, прикрутив его саморезами к доскам обрешетки. Постройка станет похожа на настоящий лесной шалаш, если крышу обшить досками длиной 2,0-2,1 метров, которые нужно предварительно обработать антисептиком. Приколачивают их гвоздями к обрешетке, начиная с нижнего края крыши, таким образом, чтобы каждая верхняя доска перекрывала половину нижней (внахлест). Подобным образом делают гонтовую крышу.
- Конек укрепляют листом оцинковки, как это показано на чертеже туалета «теремок». Доски стульчака шлифуют, все деревянные поверхности покрывают морилкой и лаком.
Крыша в такой кабинке доходит практически до земли, поэтому стены и пол внутри остаются сухими даже в самый сильный дождь.
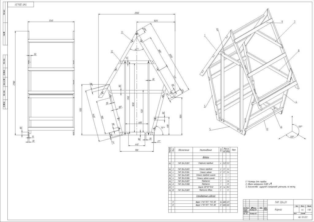
Размеры туалета для дачи Шалаш
Туалет типа «Шалаш» (треугольный)
Эта туалетная кабинка имеет вид треугольника. Боковые стенки одновременно являются скатом кровли. Построить такой туалет своими руками можно за несколько часов. Чертежи с примерными размерами даны на картинке ниже. В них можно и нужно вносить корректировки: все габариты даны для людей средней комплекции.
Чертеж дачного туалета типа «Шалаш»
Если нужны более широкие двери, можно не раздвигать основание, которое в данном проекте и так немалое, а сделать двери нестандартной формы — как на рисунке справа.
Обшивка отделочными материалами в туалетах «Шалаш» проводится только впереди и сзади. На боковые поверхности укладывают кровельный материал. Можно использовать любой, но неплохо смотрится мягкая черепица или полимерный шифер.
Имея чертежи треугольный туалет на даче построить проще простого
На фото справа обрешетка сделана под листовой кровельный материал — использовали шифер из пластика — он есть разных цветов, стоит относительно недорого, монтируется просто — гвоздями с прокладками.
Если использовать планируете мягкий кровельный материал — рубероид, битумную черепицу или что-то похожее, обрешетку делайте сплошную — из листа влагостойкой фанеры, ДСП, ГВЛ. Их крепят к каркасу саморезами, сверху настилают кровельные материалы.
Капитальное сооружение из кирпичей
В основе капитальной постройки находится фундамент, выполненный из железобетонной арматуры, вкопанной в грунт. Простое незамысловатое помещение площадью 10 квадратов потребует примерно 400 кирпичей для строительства.

Кладка кирпичей производится впритык ложкового и тычкового рядов наружной версты. Кирпичи укладываются на долгие года, постройка прослужит не одному поколению.

Для указанного количества кирпичей потребуется почти 80 кг цемента. Расчет грубый, но для составления сметы его достаточно. Излишки материала успешно найдут применение на дачном участке.

Чертеж кирпичного строения идентичен скворечнику, поэтому можно не составлять новый, а воспользоваться имеющемся. Часто дачники скачивают готовые схемы из интернета.

Цементу необходимо время, чтобы схватиться. Поэтому кладку делают не более 5 рядов в день. Если возвести стены целиком за один день, незастывший цемент вытечет между кирпичами и постройка разрушится. В зависимости от типа крыши мастерят стропильный каркас. Поверх досок стелют профнастил или шифер.




Туалет возводится самым первым из всех дачных построек. Люди остро нуждаются в комфортном, теплом месте для справления своих физиологических нужд. Построить дачный сортир не сложно. Понадобиться простой, недорогой материал. Работу следует начинать с чертежа, рассчитать размеры, нагрузку, определиться с утеплителем и декором. В результате получится достойный атрибут дачного благоустройства.
Чертежи и фото самодельных дачных туалетов





























Как сделать туалет на даче – подготовительный этап
После определения места для постройки уличного туалета можно заняться подбором конструкции. Существуют рекомендации, касающиеся оптимальных размеров туалета, высота, ширина и глубина которого соответственно равняется 2,2 х 1 х 1,4 метра.
Что касается формы, то каждый выбирает свой вариант, среди наиболее распространенных дворовой туалет теремок, домик или шалаш.
Для выполнения необходимых работ следует приобрести материалы и инструменты, если таковые отсутствуют в хозяйстве. Потребуются:
- лопата с короткой ручкой;
- лом, а лучше солидный перфоратор (при наличии тяжелого грунта);
- бочка или другая емкость на 200 литров для выгребной ямы; можно также использовать стандартное колодезное кольцо диаметром 1м;
- ручной бур.
Лопата с коротким черенком пригодится для рытья ямы, в которой непросто развернуться с более длинным инструментом. Жесткая земля (известняк, тяжелая глина, галечник и т.п.) потребует наличия перфоратора, лома или кирки. Для электрического инструмента следует приготовить подключение к источнику питания.
Можно, конечно, купить готовый туалет, из числа тех, что предлагают строительные магазины, но интереснее будет сделать своими силами. Прежде всего, нужно сделать эскиз и чертеж, не забывая про вентиляцию и утепление. Затем можно самостоятельно возводить простое сооружение из оставшихся от строительства дачи или дома материалов или приобрести сэндвич-панели.
Как установить деревянный туалет
- Установите фундамент. С этой целью не требуется заливать бетонное основание, достаточно вкопать по периметру постройки бетонные стеновые блоки или столбы.
- Из деревянного бруса 50х50 мм или 80х80 мм сколотите каркас. В этом же качестве можно использовать профильные металлические трубы. Каркас обязательно должен иметь четыре вертикальные опоры.
- В качестве обвязки крыши устанавливаются продольные элементы, выступающие не менее чем на 30 см за периметр домика.
- Для обвязки основания крепите враспор четыре планки на уровне стульчака. При этом обязательно учитывайте свой рост для удобства пользования туалетом. Обычно высота стульчака устанавливается не более 40 см от чистового пола.
- Далее установите укосины по диагонали задней и боковых стен.
- Для установки двери добавьте две вертикальные опоры высотой не более 190 см, связанные вверху перемычкой.
- Обшейте каркас деревянными досками, профнастилом, шифером и т.д.
- Сделайте дверцу на задней стенке для удобства опорожнения емкости с отходами. Можно сделать вырез по всей ширине стенки на высоту стульчака, закрепив его при помощи петель.
- Накрывая крышу, герметизируйте ее рубероидом или другим влагоизолятором в случае применения деревянных досок. Все же лучше использовать шифер или лист металлопрофиля.
- При необходимости установите вентиляционную трубу, прорезав отверстие в стульчаке и крыше. Обязательно герметизируйте все щели.
- Навесьте дверь. Не забудьте оснастить ее шпингалетом или крючком. В двери проделайте окошко для естественного освещения.
Виды и габариты «кабинетов задумчивости»
Размеры дачного туалета бывают разными. На эти параметры влияют особенности строения, его расположение, наличие либо отсутствие выгребной ямы. Основные типы конструкций:
- Традиционное «деревенское» сооружение, оборудованное выгребной ямой.
- «Люфт-клозет». Здесь тоже присутствует яма для нечистот, но она абсолютно герметична. Такой туалет обязателен, если место, отведенное для него, располагается близко к источнику воды, жилью. Если уровень грунтовых вод высок, «люфт-клозет» — единственный вариант.
- «Пудр-клозет» — санузел с домиком, но без ямы. Ее заменяют пластиковым баком, бочкой либо ведром. С неприятными запахами воюют с помощью адсорбентов — припудривают содержимое емкости древесной золой или опилками, песком, торфом.
Обычные размеры туалета: высота от потолка до пола — 2000-2100 мм (для «шалаша» — 3000), там, где находится стульчак — 1900-1950. Сиденье унитаза возвышается над полом на 400-500 мм. Глубина строения — 1500 мм, ширина — 1200. Эти величины для домиков «шалашей» — 1500, 2000, для «избушки» — 1500, 1000 соответственно. Самая популярная модель «скворечник», она имеет односкатную крышу. Высота «фасада» — 2300 мм, задней стенки — 2000. Ширина и глубина — 1000 мм, это минимум.
Схема уличного туалета
Наиболее распространенным вариантом дачного или садового туалета является прямоугольная постройка. Ее еще называют «скворечник» так как в варианте с односкатной крышей она очень его напоминает.

На чертеже туалета, представленном на фото выше, для отделки использовалась доска толщиной 40 мм. Сооружение получается совсем недорогим. Двери можно сделать из тех-же досок, скрепленных планками вверху, внизу и наискосок. Петли можно поставить наружные — амбарные, оформив строение в нарочито грубом стиле.

Несмотря на то, что постройка утилитарная, при желании ей можно придать привлекательный вид и скворечник превратится во вполне привлекательное небольшое здание. Например, можно сделать из этой постройки маленькую мельницу.

Тот же скворечник, но из сруба — уже совсем другой вид. Особенно гармонично все будет смотреться, если здание на участке выстроено (или будет выстроено) тоже из бревна.

Для регионов, где древесина — роскошь, и расходовать ее на постройку туалета нерационально, ту же конструкцию можно обшить другим материалом. Например, каркас обшивается любым листовым материалом — фанерой, ДВП, ГВЛ. На них снаружи можно уложить отделочный материал — плитку или декоративный камень. Еще более бюджетный вариант — обшить профнастилом.

Это тот тип туалета, Который несложно построить из кирпича. Делают их обычно в полкирпича. Никаких сложностей даже для неопытного каменщика нет. Кладка со смещением, раствор — цементно-песчаный.

Пошаговая инструкция строительства уличного туалета тут.
Какие действия следует провести для постройки туалета на даче своими руками

Несмотря на первый взгляд, простоту конструкции туалета на дачном участке, он относится к основным постройкам. Самой главной постройкой на участке является санузел, многие подтвердят, что за городом, без него просто невозможно находиться.
Конечно, туалет, который построен на улице ничем не заменит комфортной уборной, он обеспечит лишь некоторые удобства. Но без него невозможно полноценно работать на приусадебном участке.
Санитарные нормы постройки туалета нужно знать и создавать постройку, заданную ими.
Строительство туалета не составляет особой сложности и не требуется привлекать специалистов.
Но в постройки нужно соблюдать некоторые особенности.
Основные нормативы:
- Удобное место под постройку туалета. Не удачное место может привести к загрязнению зоны вокруг сооружения, почвы, воды. Поэтому не соблюдение санитарных норм и незнание может привести к проблемам со здоровьем и к привлечению штрафов санитарной службы.
- Удостовериться что строительство не создаст неудобства соседям.
- Обдумать метод, как будет происходить опустошение выгребной ямы.
- Если уровень грунтовых вод высокий, то постройка туалета должна быть хорошо заделана, во избежание загрязнения воды.
Как выбрать и выстроить дачный туалет своими руками фото и какие бывают виды их конструктивного исполнения:
Вариантов для выбора постройки туалета достаточно, но на выбор может повлиять:
- Бюджет, выделенный для постройки туалета;
- Частота использования данного сооружения;
- Уровень высоты грунтовых вод;
- Средства, выделенные на ремонт и утилизацию отходов.
Строительство деревянного туалета своими руками, чертежи

Основное предпочтение отдается постройкам из дерева. Стоимость постройки не большая и не требует особых навыков. Деревянный туалет можно построить в стиле бревенчатой избушки или маленького домика. Если чертеж дачного туалета придумать самостоятельно, то можно получить не только нужную, а еще и постройку, которая украсит ваш участок. В качестве отделки можно взять вагонку. Достоинством деревянного туалета является то, что его можно легко переставить на новое место.
Недостатки деревянных построек.
- под влиянием солнца древесина деформируется, быстро высыхает и лопается;
- выгорание дерева от действия ультрафиолета;
- влажность и сырость способствует деформации каркаса постройки;
- вследствие сырости образовываются грибки, которые разрушают древесину, и она начинает гнить и выделять неприятные запахи.
Для того чтобы продлить срок службы постройки, ее необходимо обработать специальными средствами в виде пропитки. Дерево можно обработать грунтовкой и покрыть краской.
Избушка
Избушка — самая сложная архитектурная форма дачного туалета. Потребует от вас изрядного количества материалов. Сэкономить на них точно не получится, так как требует большого количества подрезки. Зато полученная граненая форма позволяет сохранить тепло в холодное время года и справиться с неблагоприятными климатическими условиями. Популярность избушки как варианта дачного туалета обусловлена большим количеством дизайнерских вариаций, позволяющих вписать постройку в интерьер любого участка. Многие называют этот вид дачного домика иначе — теремок.

8 чертежей дачного туалета типа «Избушка»
Самый распространенный, пожалуй, вариант

А вот здесь бока немного скошены — впрочем, впечатление это отнюдь не портит, скорее, наоборот, придает постройке оригинальный и более современный вид.
Виды деревянных туалетов для дачи
Деревянные дачные туалеты различаются не только видом системы канализации, но и формой наземной конструкции. Надо отметить, что хозяева дач с природной склонностью к красоте и изящности создают из этого места целые шедевры архитектуры. Более пассивные дачники обходятся типовыми конструкциями для изготовления или приобретают уже готовые заводские кабинки.
Скворечник
Деревянный туалет «Скворечник» – это классическая и самая простая конструкция для дачи. По своей форме он напоминает обычный домик для пернатых, отсюда и это название. Как правило, это односкатное строение прямоугольной формы с дверью и примитивным окошком (вентиляцией).
Классическую кабинку «Скворечника» выполняют из дерева, она имеет вытянутую вверх форму прямоугольника и покатую крышу под железом или шифером. Внутри кабинки на деревянном подиуме расположен стульчак с крышкой или стандартный керамический (пластиковый) унитаз.
Кабинка туалета «Скворечник» подходит для:
- канализации с выгребной ямой (требует сооружения котлована);
- люфт-клозета (для канализации с каналом сброса отходов под уклоном);
- биотуалета (если в комплектации нет заводской кабинки);
- пудр-клозета (с накопительным резервуаром для биологических отходов).
На постройку этого типа туалета уходит совсем немного материалов и его без труда можно построить на даче своими собственными руками. Однако самым большим минусом конструкции является то, что кабинка плохо удерживает тепло и сильно продувается ветром, отчего использование возможно только в теплое время года.
Избушка
Из всех вариантов уличного туалета «Избушка» – самое сложное, но наиболее красивое сооружение на даче. Такое архитектурное строение потребует от мастера основательных познаний в строительстве и работы с древесиной, а также немалое количество материалов.
Для того чтобы сделать бюджетный туалет и сэкономить, такой тип постройки точно не подойдет. Дело в том, что монтаж «Избушки» и обшивка требует большого количества подрезки дорогостоящей древесины. Однако в такой форме есть и свое большое преимущество – ромбовидное сооружение прекрасно сохраняет тепло, а это немаловажный аргумент для использования помещения на даче в зимний период.
Кабинка дачного туалета «Избушка» подходит для модификации с выгребной ямой, люфт-клозета, пудр-клозета и биотуалета разной модификации.
Дачный туалет в форме «Избушки» пользуется особой популярностью у дачников, так как имеет большое количество вариантов отделки и «вписывается» практически в любой ландшафтный проект участка. Кроме этого, если подойти к вопросу отделки с большой фантазией, то это место не иначе как сказочным теремком и не назовешь.
Домик
Деревянная туалетная кабинка «Домик» имеет ряд преимуществ по сравнению с другими видами построек данной принадлежности. Во-первых, такая конструкция допускает самые многообразные дизайнерские решения в отделке. Во-вторых, постройка превосходно держит тепло, а значит туалет можно использовать на даче в любой сезон. И, в-третьих, «Домик» очень удобен для человека с любым ростом и весом.
По своему виду и конструкции «Домик» напоминает обычное жилое строение, только гораздо меньшего размера и упрощенной системой боковых и кровельных балок. Такую кабинку можно утеплить снаружи или изнутри и использовать на даче в любое время года.
Дачный туалет «Домик» используют с любым видом канализации – с выгребной ямой, накопительной емкостью, люфт-клозетом, пудр-клозетом, биотуалетом.
Шалаш
Туалетная кабинка типа «Шалаш» – прочная высокая конструкция с привлекательным внешним видом. Она напоминает форму растительного шалаша и ее собирают по этому же принципу. Особенностью туалетной кабинки является то, что боковые стенки и ее крыша составляют единое целое.
Однако в такой конструкции есть существенный недостаток. Внутри помещения своды потолка располагаются очень близко друг к другу и человеку с высоким ростом не избежать ударов головой. Чтобы это исключить, «Шалаш» делают максимально широким в основании с высоким фронтоном.
Однако в таком строении есть и свои явные преимущества. «Шалаш» выдерживает любые катаклизмы погоды – ветер, дождь или снег для него не проблема. Кроме этого, туалетный домик этой конструкции значительно легче построить своими руками, чем, например, кабинку «Скворечник».
Надстройка уличного туалета «Шалаш» подходит для монтажа канализации с выгребной ямой, накопительной емкостью, люфт-клозета, пудр-клозета и биотуалета (химического, электрического, торфяного).
Совет! Для кровли «Шалаша» рекомендуется металлическая или битумная черепица, металлопрофиль, пластиковый или классический шифер.
Как сделать туалет на даче — подготовительный этап
После определения места для постройки уличного туалета можно заняться подбором конструкции. Существуют рекомендации, касающиеся оптимальных размеров туалета, высота, ширина и глубина которого соответственно равняется 2,2 х 1 х 1,4 метра.
Что касается формы, то каждый выбирает свой вариант, среди наиболее распространенных дворовой туалет теремок, домик или шалаш.

Для выполнения необходимых работ следует приобрести материалы и инструменты, если таковые отсутствуют в хозяйстве. Потребуются:
- лопата с короткой ручкой;
- лом, а лучше солидный перфоратор (при наличии тяжелого грунта);
- бочка или другая емкость на 200 литров для выгребной ямы; можно также использовать стандартное колодезное кольцо диаметром 1м;
- ручной бур.
Лопата с коротким черенком пригодится для рытья ямы, в которой непросто развернуться с более длинным инструментом. Жесткая земля (известняк, тяжелая глина, галечник и т.п.) потребует наличия перфоратора, лома или кирки. Для электрического инструмента следует приготовить подключение к источнику питания.
Можно, конечно, купить готовый туалет, из числа тех, что предлагают строительные магазины, но интереснее будет сделать своими силами. Прежде всего, нужно сделать эскиз и чертеж, не забывая про вентиляцию и утепление. Затем можно самостоятельно возводить простое сооружение из оставшихся от строительства дачи или дома материалов или приобрести сэндвич-панели.

Дачный туалет из кирпича
Если вы планируете пользоваться дачным туалетом на протяжении многих лет, да ещё и желаете хорошенько утеплить его, то есть смысл отказаться от древесины и использовать более долговечный материал – кирпич. Да, времени и сил на строительство своими руками уйдет больше. Зато и результат не разочарует.

Для работы потребуются такие материалы, как:
- бетон,
- дверь,
- кирпичи,
- брус сечением 30×30-40×40 мм,
- кровельный материал (шифер, ондулин, черепица, рубероид или любой другой).
Когда всё необходимое есть под рукой, следует изучить чертежи и фото, после чего начинать строить подходящий туалет своими руками.
В первую очередь обустраивается выгребная яма. Как сделать её расскажем чуть позже. После завершения этой работы необходимо позаботиться о фундаменте. Ведь кирпичный туалет весит немало, поэтому без надежного основания тут никак не обойтись.
По периметру будущего туалета выкапывается траншея глубиной в 40-50 см и шириной примерно на 10-15 см больше ширины стен самой постройки. На дно засыпается песок. Он выравнивается и обильно увлажняется. Сюда же устанавливается опалубка (использовать можно фанеры, прямой шифер, доски, горбыль или любой другой материал). На пучинистом грунте фундамент придется армировать. Сделать это несложно – достаточно связать простейший каркас из четырех прутов арматуры и установить в опалубку. Затем туда же заливается бетон. Нужно дать ему набрать твердость хотя бы пару недель, после чего можно приступать к строительству дачного туалета из кирпича.
На бетонное основание укладывается раствор, который тщательно выравнивается, а поверх него устанавливают кирпичи
Важно проверить, чтобы первый ряд был ровным – желательно использовать уровень. Даже небольшие погрешности могут привести к тому, что каждый следующий ряд будет более неровным
Оптимальный размер туалета – от 120×120 до 140×140 см при высоте 200-220 см.
Когда первый ряд кирпичей уложен, на краях натягивается тонкая, прочная нить – это облегчит укладку следующих рядов, позволяя выравнивать каждый камень.
При укладке не стоит забывать про дверной проем – его размер должен быть около 180-200 см высотой и 60-80 см шириной. На противоположной стене желательно оставить небольшие окошки для вентиляции. Впоследствии их можно застеклить или же просто оставить такими же.

Крышу лучше сделать односкатной. На кирпичный каркас укладывается обрешетка из бруса. Если используется шифер или черепица, то материал укладывается на брус. При использовании рубероида или ондулина, на брус укладывается лист фанеры, а кровля монтируется поверх него.
Садовый туалет из кирпича построен, причем своими руками, без привлечения специалистов!
Видео






























